Data-Driven Office Design

Data-Driven Office Design คืออะไร? และทำไมองค์กรยุคใหม่ต้องใช้ก่อนเริ่มออกแบบ?

ในยุคที่องค์กรต้องการ “ใช้พื้นที่ให้คุ้มที่สุด” และ “สนับสนุนรูปแบบการทำงานที่เปลี่ยนไปตลอดเวลา” การออกแบบออฟฟิศจากความรู้สึกหรือความเคยชินแบบเดิมอาจไม่เพียงพออีกต่อไป
สิ่งที่องค์กรระดับสากลกำลังใช้คือ Data-Driven Office Design — การออกแบบออฟฟิศบนพื้นฐานข้อมูลจริง ไม่ใช่การเดาจำนวนโต๊ะหรือขนาดห้องประชุม แต่คือการวิเคราะห์พฤติกรรมการทำงานของพนักงานอย่างเป็นระบบ ก่อนเริ่มวางแปลน
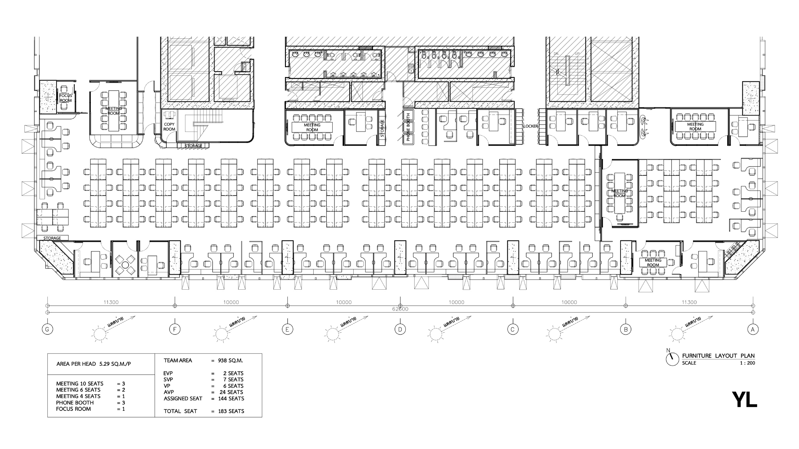
ทาง YL นำแนวคิดนี้ใช้กับโครงการล่าสุด CPN Office @ Central World เพื่อออกแบบพื้นที่ทำงานให้สอดคล้องกับโครงสร้างทีมยุคใหม่ และเพิ่มประสิทธิภาพขององค์กร

1) Data-Driven Office Design คืออะไร?
คือกระบวนการออกแบบสำนักงานที่เริ่มจากการ “เก็บข้อมูลเชิงปริมาณและเชิงคุณภาพ” เช่น
• จำนวนพนักงานปัจจุบันและแผนการเติบโต
• อัตราการใช้โต๊ะประจำ (Assigned Seat) และโต๊ะแบบ Flexible
• ปริมาณการใช้ห้องประชุมแต่ละขนาด
• การทำงานแบบ Hybrid / On-site
• ปริมาณเอกสารและความต้องการ Storage
• การเชื่อมโยงระหว่างแผนกที่ต้องอยู่ใกล้กัน (Adjacency Matrix)
• ลักษณะงานของแต่ละทีม (ต้องการความเงียบหรือ Collaborative)
เมื่อนำข้อมูลเหล่านี้วิเคราะห์ร่วมกัน จะได้ “Space Programming” ที่แม่นยำกว่าเดิมหลายเท่า และลดความผิดพลาดที่มักเกิดในโปรเจ็กต์ออฟฟิศทั่วไป เช่น โต๊ะไม่พอ ห้องประชุมไม่เหมาะสม หรือมี Storage เกินความจำเป็น

2) ทำไมองค์กรยุคใหม่ต้องใช้วิธีนี้ก่อนเริ่มออกแบบ?
2.1 ใช้พื้นที่อย่างคุ้มค่า (Maximize Efficiency)
ออฟฟิศคือหนึ่งในต้นทุนที่สูงที่สุดขององค์กร การรู้ Data เช่น จำนวนโต๊ะที่ใช้งานจริงต่อวัน ทำให้ออกแบบพื้นที่ให้รองรับคนได้มากขึ้นในพื้นที่เท่าเดิม เช่นในโปรเจ็กต์ CPN ออกแบบให้รองรับ 183 seats ภายในพื้นที่ 938 ตร.ม. โดยไม่รู้สึกอึดอัดจนเกินไป

2.2 ลดต้นทุนก่อสร้างและค่าใช้จ่ายระยะยาว
เมื่อรู้ Data จริง จะลดการสร้าง Built-in ที่ไม่จำเป็น เช่น
• ตู้เก็บของที่ถูกคำนวณตามปริมาณเอกสารแต่ละทีม
• ห้องประชุมที่ออกแบบให้ตรงกับความต้องการใช้งานจริง (ไม่มากหรือไม่น้อยเกินไป)
ผลลัพธ์คือ งบประมาณไม่บานปลาย และพื้นที่พร้อมรองรับการเปลี่ยนแปลงในอนาคต

2.3 ทำให้ Flow การทำงานดีขึ้นแบบวัดผลได้
ข้อมูลเช่น Work Pattern และการเชื่อมโยงระหว่างทีมช่วยกำหนดตำแหน่งโต๊ะ เช่น
• ทีมที่ต้องทำงานร่วมกันถูกจัดให้อยู่ใกล้กันเพื่อลดเวลาเดิน
• ทีมที่ต้องใช้สมาธิมากถูกวางให้ห่างจากพื้นที่ที่มีการเดินผ่านสูง
• พื้นที่ที่ได้รับแสงธรรมชาติถูกจัดไว้สำหรับที่นั่งหลักเพื่อเพิ่ม Productivity

2.4 สร้างออฟฟิศที่ตอบโจทย์จริง ไม่ใช่แค่สวย
ภาพลักษณ์เป็นเรื่องสำคัญ แต่ Function สำคัญกว่า
Data ช่วยให้ดีไซน์รองรับพฤติกรรมจริงของพนักงาน
เช่น
• การจัด High-back Partition เพื่อความเป็นส่วนตัว
• การแบ่ง Quiet Zone / Collaboration Zone ตามพฤติกรรมใช้งาน
• วัสดุที่เลือกตามระดับการใช้งานหนักในองค์กรใหญ่

2.5 รองรับการเติบโตขององค์กร (Scalability)
การวางแผนด้วย Data ทำให้องค์กรสามารถขยายทีมในอนาคตได้โดยไม่ต้องรื้อปรับปรุงใหญ่

3) ตัวอย่างข้อมูลที่ทีมออกแบบต้องขอจากองค์กรก่อนเริ่มวางแปลน
Checklist ที่องค์กรสามารถนำไปใช้ได้จริง:
1. จำนวนพนักงานทั้งหมดตามแผนก
2. แผนขยายทีม 1–3 ปี
3. % การใช้พื้นที่โต๊ะทำงานต่อวัน
4. Meeting Room Usage (จำนวนครั้ง/ระยะเวลา/จำนวนคน)
5. Equipment Data — Printer, Server, IT Rack
6. ปริมาณเอกสารหรือของเก็บที่ต้องใช้งาน
7. การทำงานแบบ Hybrid หรือ On-Site
8. ความต้องการพิเศษ เช่น Quiet Room, Focus Room, Project Room
โดยข้อมูลเหล่านี้จะถูกแปลงเป็น
• Workplace Strategy
• Space Programming
• Final Layout Plan

และนี่คือเหตุผลที่องค์กรใหญ่เลือกทำงานร่วมกับทีมออกแบบที่เข้าใจ Data อย่างครบถ้วนก่อนทำการออกแบบให้ลงตัว

สรุป
Data-Driven Office Design ไม่ใช่เทรนด์ แต่เป็น “พื้นฐานใหม่” ของการออกแบบสำนักงานยุคใหม่ หากองค์กรต้องการพื้นที่ทำงานที่ คุ้มค่า ใช้งานจริง และยืดหยุ่นในอนาคต การเริ่มต้นด้วยข้อมูลคือสิ่งที่สำคัญที่สุด



Leave a comment